V1530 – LASTRES

DESCRIPCIÓN

ENCANTADORA CASA CON VISTAS AL MAR EN LASTRES, LISTA PARA ENTRAR A VIVIR Y CON LICENCIA DE VIVIENDA DE USO TURÍSTICO.

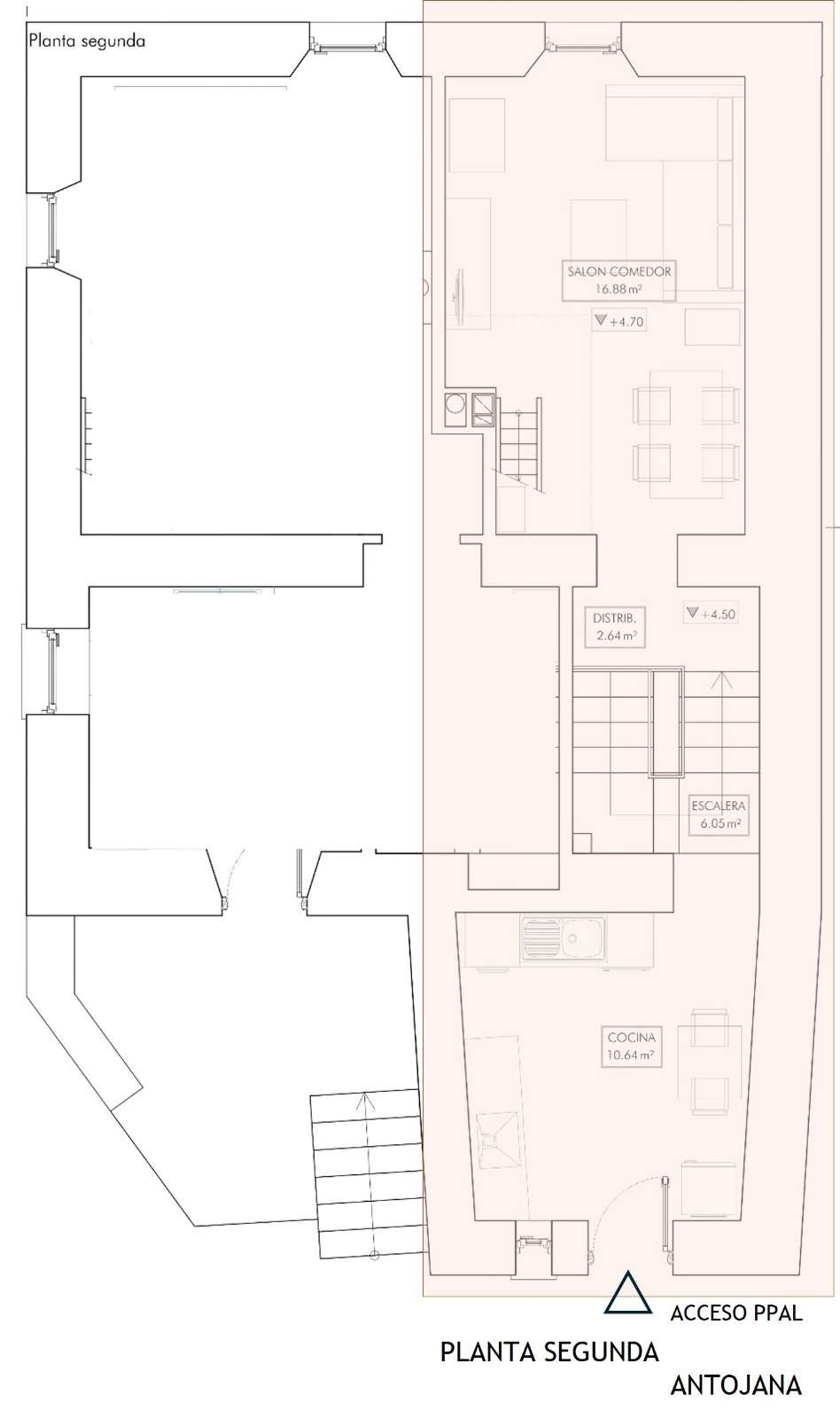
LA CASA SE DISTRIBUYE EN TRES PLANTAS MÁS UN BAJOCUBIERTA:

·         PLANTA DE ACCESO: COCINA EQUIPADA Y SALÓN-COMEDOR CON BONITAS VISTAS AL MAR Y AL PUERTO DE LASTRES. DESDE ESTA PLANTA SE ACCEDE AL BAJOCUBIERTA ABUHARDILLADO, CON TRES CAMAS Y VENTANA VELUX.

·         PLANTA INTERMEDIA: ACOGEDORA HABITACIÓN CON BAÑO CON DUCHA.

·         PLANTA BAJA (CON ENTRADA INDEPENDIENTE): AMPLIA HABITACIÓN CON BAÑO Y DUCHA.

LA VIVIENDA DISPONE DE VENTANAS DE MADERA CON DOBLE ACRISTALAMIENTO, CALEFACCIÓN MEDIANTE ESTUFA DE PELLETS Y RADIADORES ELÉCTRICOS, Y CONSERVA EL ENCANTO DE LAS CONSTRUCCIONES TRADICIONALES, CON PAREDES DE PIEDRA Y SUELOS DE MADERA Y CERÁMICA.

SITUADA EN LA PARTE ALTA DE LASTRES, UNA ZONA TRANQUILA Y A UN PASO DE TODOS LOS SERVICIOS. SE ENCUENTRA EN BUEN ESTADO, LISTA PARA ENTRAR A VIVIR, Y CUENTA ADEMÁS CON LICENCIA DE VIVIENDA DE USO TURÍSTICO COMPLETAMENTE ACTUALIZADA, LO QUE LA CONVIERTE EN UNA EXCELENTE OPCIÓN TANTO COMO HOGAR HABITUAL COMO PARA INVERSIÓN.

PRECIO: 349.550€

Compartir en redes

localización

Envía un whatssapp
Whatsapp Chat
Envía un whatsapp ahora, y nos pondremos en contacto rápidamente
Solicitar información

CATEGORÍAS

DESTACADO

V1332 - LASTRES
1300 m²
n/d
n/d